small menu ico
Úprava areálových ploch

Úprava areálových ploch

Úprava areálových ploch
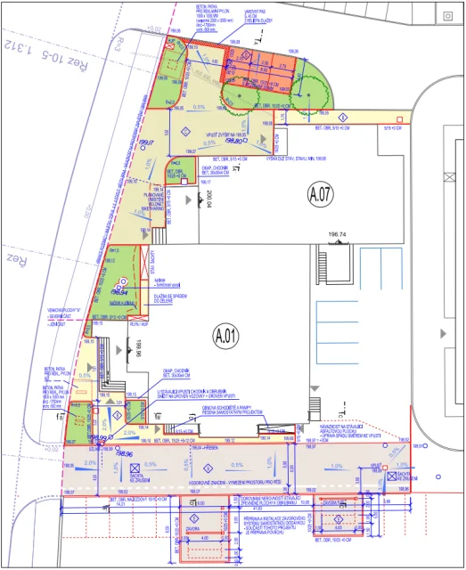
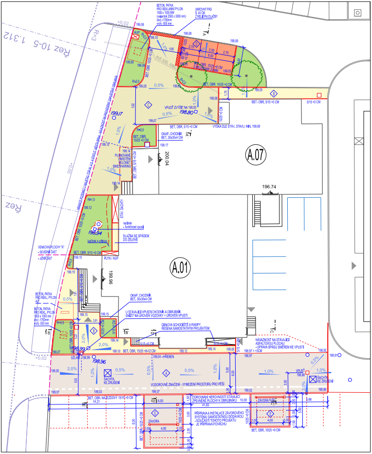
Vážení nájemci, oznamujeme Vám, že v pondělí 16.3.2020 bude zahájena úprava areálových ploch kolem objektu A01 + A07 včetně opravy komunikace jižního vjezdu mezi budovou A01 a hlavním parkovištěm B. Dojde také k úpravě ploch v místě závor na parkovišti B. O postupu prací Vás budeme průběžně informovat, tak jako o potřebě přeparkování. Vždy bude zabezpečen vstup do objektu. Dbejte, prosím, pokynů správy a stavby. V případě dotazů nás neváhejte kontaktovat.